Zum Hauptinhalt springen Zur Suche springen Zur Hauptnavigation springen
  • Sicher Einkaufen mit SSL-Verschlüsselung
  • info@bfb-gmbh.de
  • über 3.500 zufriedene Kunden

Tischgestell Quadro 40 Aluminium EV1, Tischhöhe 730mm

Produktinformationen "Tischgestell Quadro 40 Aluminium EV1, Tischhöhe 730mm"

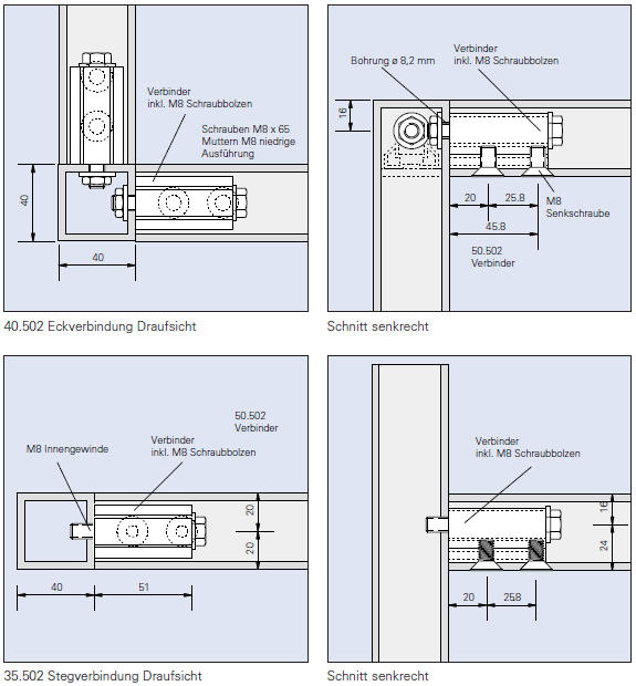
Tischgestell Aluminium Profil 40x40mm, Höhe 730mm (ohne Tischplatte), Tiefen 750/950mm.
Lieferung lose zum selbst zusammenbauen, ohne Tischplatte, inkl. allem notwendigen Montagematerial.
Geeignet für Holz- und Steinplatten, Zubehör für Glasplatten optionales Zubehör.

0 von 0 Bewertungen

Durchschnittliche Bewertung von 0 von 5 Sternen

Bewerten Sie dieses Produkt!

Teilen Sie Ihre Erfahrungen mit anderen Kunden.